Quadrilocale in vendita

Roma, Via Ettore Paladini - Vigna Pia
€ 359.000
124 Mq 124 Mq
2 bagni 2 bagni

Quadrilocale in vendita

Roma, Via Ettore Paladini - Vigna Pia

Descrizione annuncio

Vigna Pia - Via Ettore Paladini.

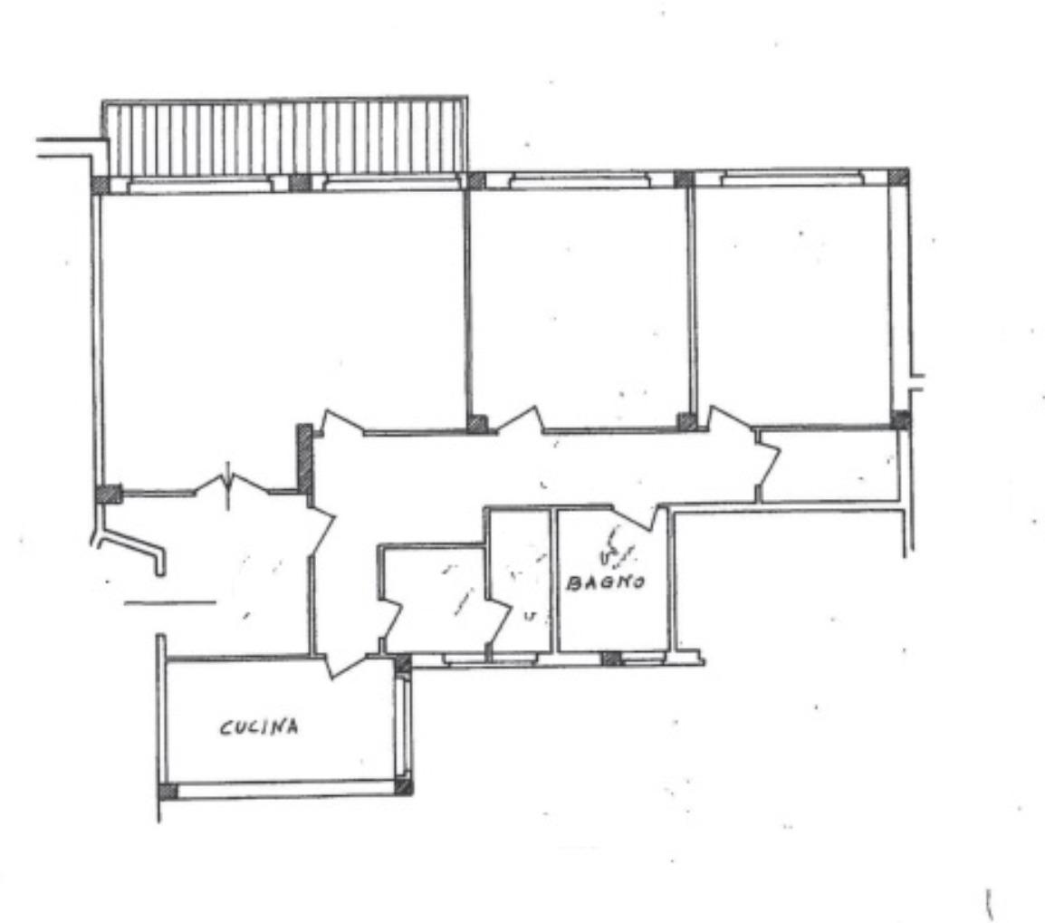
Proponiamo in vendita ampio trilocale trasformabile in quadrilocale posto al primo piano di una palazzina in cortina di quattro piani.

L'immobile è composto da ingresso, doppio salone, cucina separata, due camere matrimoniali, uno studio, un ripostiglio, due bagni finestrati e un balcone.

Possibilità di acquisto di un box auto a 30.000 euro.

Le presenti informazioni e planimetrie sono meramente indicative e non costituiscono elementi contrattuali.

SERVIZI PER IL CLIENTE:

- Valutazione immobiliare scritta gratuita e senza impegno;
- Vendita e/o locazioni di immobili nel quartiere di Vigna Pia Portuense;
- Preparazione e stesura di contratti di locazione;
- Preparazione e stesura di contratti preliminari di compravendita;
- Pubblicità capillare e mirata sui principali siti e rivista Tecnocasa;
- Clientela selezionata;
- Assistenza e consulenza in sede da parte di professionisti del settore;
- Consulenza gratuita di mutuo attraverso i nostri partner finanziari.

Mostra tutto

Nelle vicinanze

Trasporto pubblico Trasporto pubblico
Basilica di San Paolo
Basilica di San Paolo
1,7 Km
Garbatella
Garbatella
1,8 Km
Roma Trastevere
Roma Trastevere
950 m
Basilica San Paolo
Basilica San Paolo
1,7 Km
Gianicolense/Ponte Bianco
Gianicolense/Ponte Bianco
850 m
Ricariche auto elettriche Ricariche auto elettriche
Eneldrive Croce Rossa Italiana
1,5 Km
Supermercato PIM Newton
2,0 Km
Roma Nicolò da Pistoia | EnelX
2,1 Km
Eataly Roma Ostiense | EnelX
2,2 Km
Roma Il Milione | EnelX
2,3 Km
Scuole Scuole
Istituto Comprensivo "Giuseppe Bagnera"
400 m
Scuola Elementare Giovanni Pascoli
430 m
Scuole
770 m
Scuola Pubblica Elementare Vincenzo Cuoco
780 m
Roma Tre - Facoltà di Scienze Matematiche, Fisiche e Naturali
1,0 Km
Farmacia Farmacia
Farmacia Marconi
590 m
Farmacia Portuense
640 m
Farmacia Inglese
670 m
farmacia della radio
710 m
Farmacia
730 m
Ospedali Ospedali
Istituto nazionale per le malattie infettive "Lazzaro Spallanzani"
360 m
Ares 118
660 m
San Camillo-Forlanini
660 m
Ospedale Carlo Forlanini
750 m
Clinica Città di Roma
1,2 Km
Supermercati Supermercati
Pim
300 m
Simply
590 m
Supermercato Caselli
610 m
Pewex Gros
750 m
Conad
810 m
Negozi Negozi
Negozi
320 m
Il mercatino delle birbe
460 m
La Panzanella
520 m
Brums
580 m
OVS Kids
590 m
Bar Bar
Little Coffee
450 m
Bar Mario Tornatora
560 m
Barberini
600 m
Shikafè
610 m
Bar Pepe e Tabacchi
710 m
Ristoranti Ristoranti
Meucci20
250 m
Dumpling Bar
310 m
Cooperarativa Pescatori Terracina
340 m
Le tre zucche
410 m
Biondo Grano
420 m
Mostra tutto

Caratteristiche

Rif.:
61180436
Piano:
1 di 4 con ascensore (Piano basso)
Balconi:
1
Camere da letto:
2
Arredamento:
Assente
Condizionamento:
Assente
Mostra tutto
Prezzo Prezzo
€ 359.000
Prezzo box Prezzo box
€ 30.000
Rata mutuo Rata mutuo
€ 1.692 / mese
Spese annue Spese annue
€ 1.200
Proponi il tuo prezzoProponi il tuo prezzo

Classe Energetica

G
G
G
G
G
G
G
G
G
EP globale non rinnovabile:
0.00 kW h/m² anno
EP globale rinnovabile:
155.00 kW h/m² anno
EP invernale del fabbricato:
EP estiva del fabbricato:
Anno di costruzione:
1970
Riscaldamento:
Centralizzato
Tipo impianto:
A radiatori
Tipo alimentazione:
Altro

Ti interessa visionare l'immobile?

Fissa un appuntamento  Fissa un appuntamento

Richiedi informazioni

Clicca su Leggi per aprire l'informativa
* Questi campi sono obbligatori

Calcola il tuo mutuo

Semplice e senza impegno
Anticipo

( % )
Mutuo

( % )

pochi semplici passi

inserisci i tuoi dati
Questionario completato
Grazie per aver richiesto un appuntamento senza impegno con un nostro Consulente del Credito e Assicurativo.

Hai inserito correttamente tutti i dati necessari e a breve riceverai una e-mail con un link da convalidare per inviare i tuoi dati.
Affiliato
Immobiliare Niu.la Srl
Viale Di Vigna Pia, 66 00149 Roma (RM)

Il nostro staff


  • Graziano Rufo
    Collaboratore

  • Niubel Lahera
    Affiliata
Viale Di Vigna Pia, 66 00149 Roma (RM)
Zona: Portuense - Vigna Pia
Mostra su mappa
Orari: Lunedì - Venerdì 9-13 / 15.30-19.30 Sabato 9-13
Affiliato
Immobiliare Niu.la Srl
Viale Di Vigna Pia, 66 00149 Roma (RM)

2026 Tecnocasa Franchising S.p.A. - P. IVA 08365160152 - Via Monte Bianco 60/A 20089 Rozzano (MI). Ogni agenzia ha un proprio titolare ed è autonoma. Privacy policy | Policy utilizzo | Cookie policy